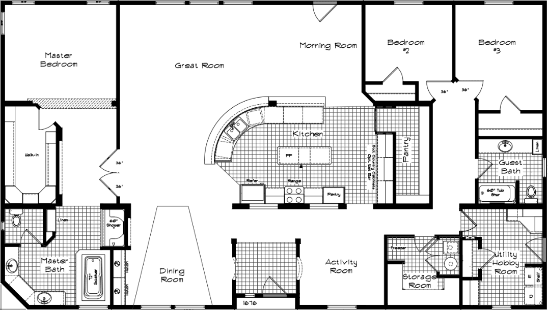
Homes | Pinehurst 2510